Descrição do Projeto

Com vontade de sair do apartamento em que moravam e esperando o primeiro filho, um jovem casal tinha a certeza que uma casa com quintal era o que precisavam para expandir sua família. Procuravam uma outra relação com a cidade, mais pé no chão,mais espaço e tranquilidade.

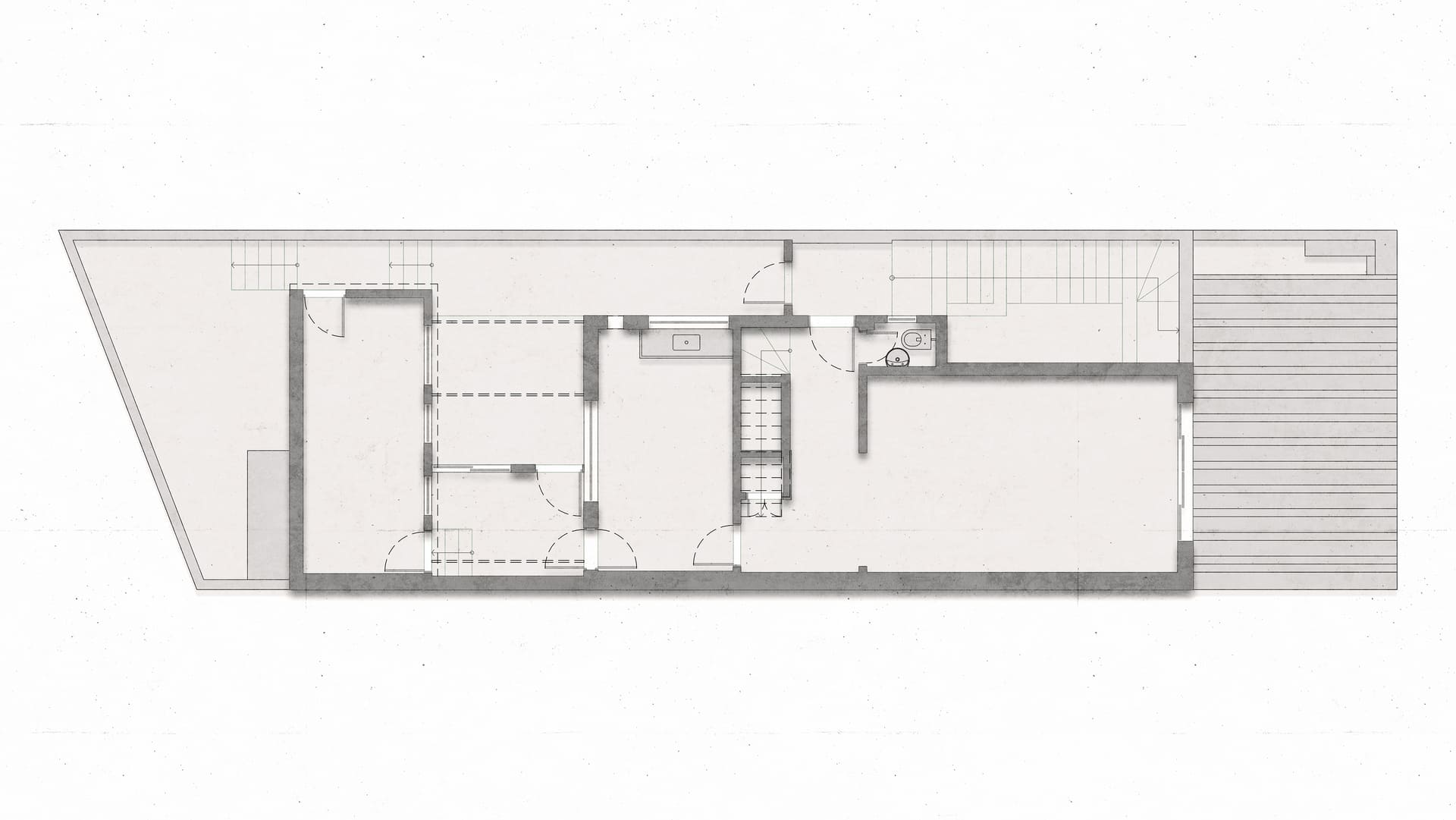
Em sua busca acharam uma casa da década de 1960, com três dormitórios amplos no andar superior, porém banheiros em péssima disposição. No térreo duas salas grandes porém separadas da cozinha e essa por sua vez totalmente fechada para o quintal.

A premissa para o projeto de reforma foi valorizar as aberturas com o objetivo de melhorar a relação da casa com o seu quintal, reconfigurar os banheiros permitindo uma melhor ventilação e iluminação natural dos mesmos e, por ultimo, trazer a vista novamente os materiais característicos dessa época como o piso de madeira maciço, azulejos decorados e cobogós de cerâmica.

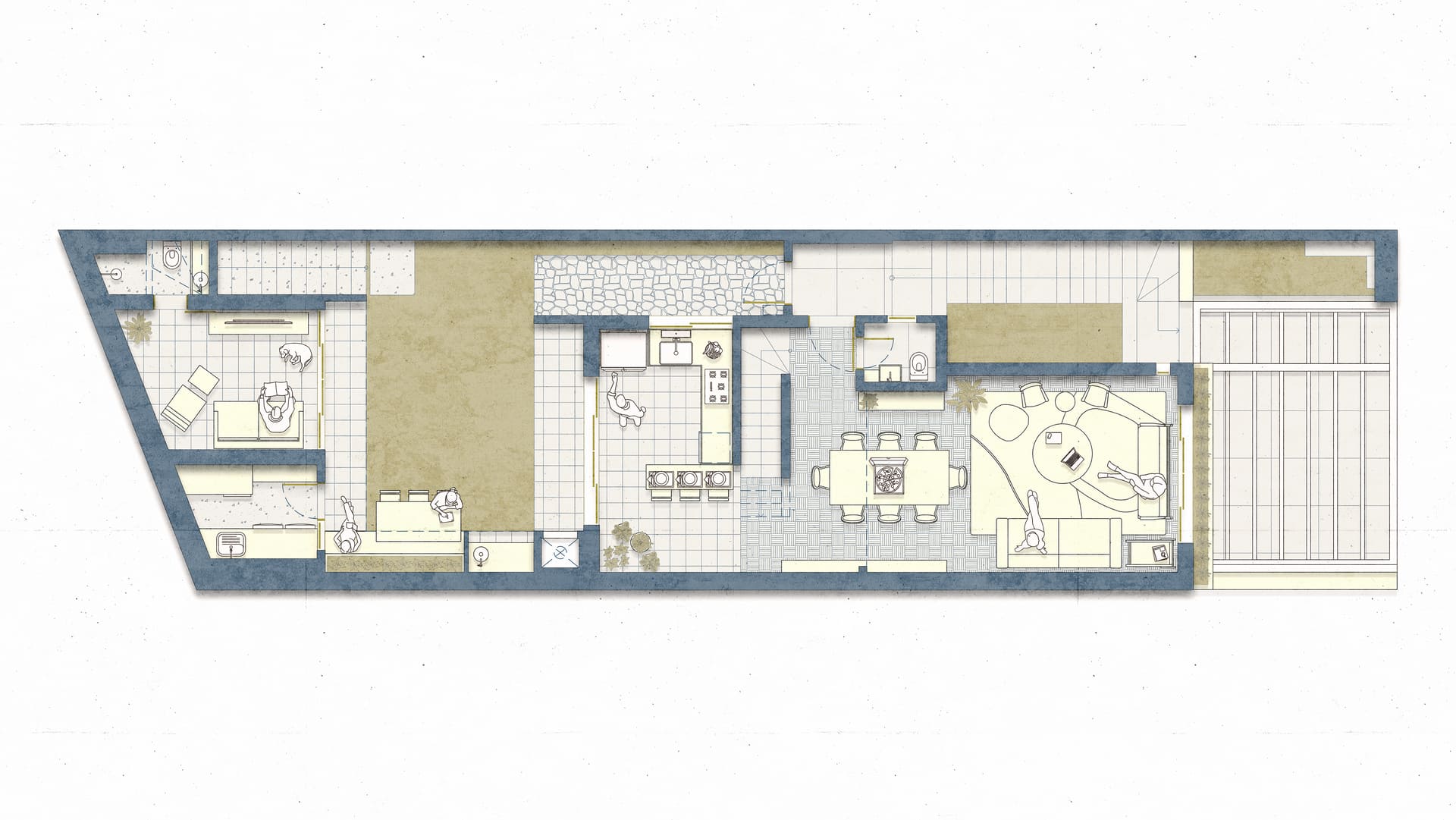
Casa com alma e memória de casa. Não queríamos apagar a história dessa construção e sim valorizá-la. A primeira decisão importante do projeto foi o aumento da abertura das janelas existentes e também a criação de novas, o que trouxe a necessidade de um reforço estrutural para a sua viabilização. Também fizemos aberturas novas na área da cozinha permitindo sua conexão com o quintal, trazendo a integração do dentro e do fora, principalmente nos dias de churrasco com família e amigos.

Na sala destacamos a parede de tijolo maciço original, restauramos a porta de entrada em ferro maciço assim como o piso de taco de madeira. Adicionamos uma parede de cobogó e também uma área de ladrilhos hidráulicos embaixo da escada.

No segundo pavimento os banheiros foram totalmente reconfigurados com novas janelas e até mesmo a abertura de uma clarabóia no telhado permitindo a iluminação e a ventilação do banheiro que fica no centro da construção.

No quintal dos fundos fizemos um novo reforço do muro de arrimo e também uma nova edícula com espaço para lavanderia e uma sala multiuso com banheiro próprio para dar apoio aos dias de churrasco.

Ao todo tivemos um processo de 1 ano de trabalho, sendo 4 meses de projeto e 8 meses de obra.

Ficha Técnica

Projeto de arquitetura:

Flávia Garofalo Cavalcanti e Maria Eduarda Koga

Gerenciamento de Obra:

Flávia Garofalo Cavalcanti

Execução:

VTEO Engenharia

Aprovação Prefeitura:

Gabriela Vieira

Fotografia:

Léo Giantomasi

Dados Gerais:

Área do lote: 185m²

Área Construída: 178m²

Ano do Projeto: 2025

Ano da obra: 2025

EstúdioIBÁ Arquitetura © 2026. Todos os direitos reservados. Desenvolvido por DonnaPixel.